1217 Alexandra Avenue, Mississauga, ON L5E 2A4 (Cawthra/Atwater/Lakeshore)

Price : $1,239,000.00 , MLS®# : W12475265

PUVANESWARANATHAN
Description

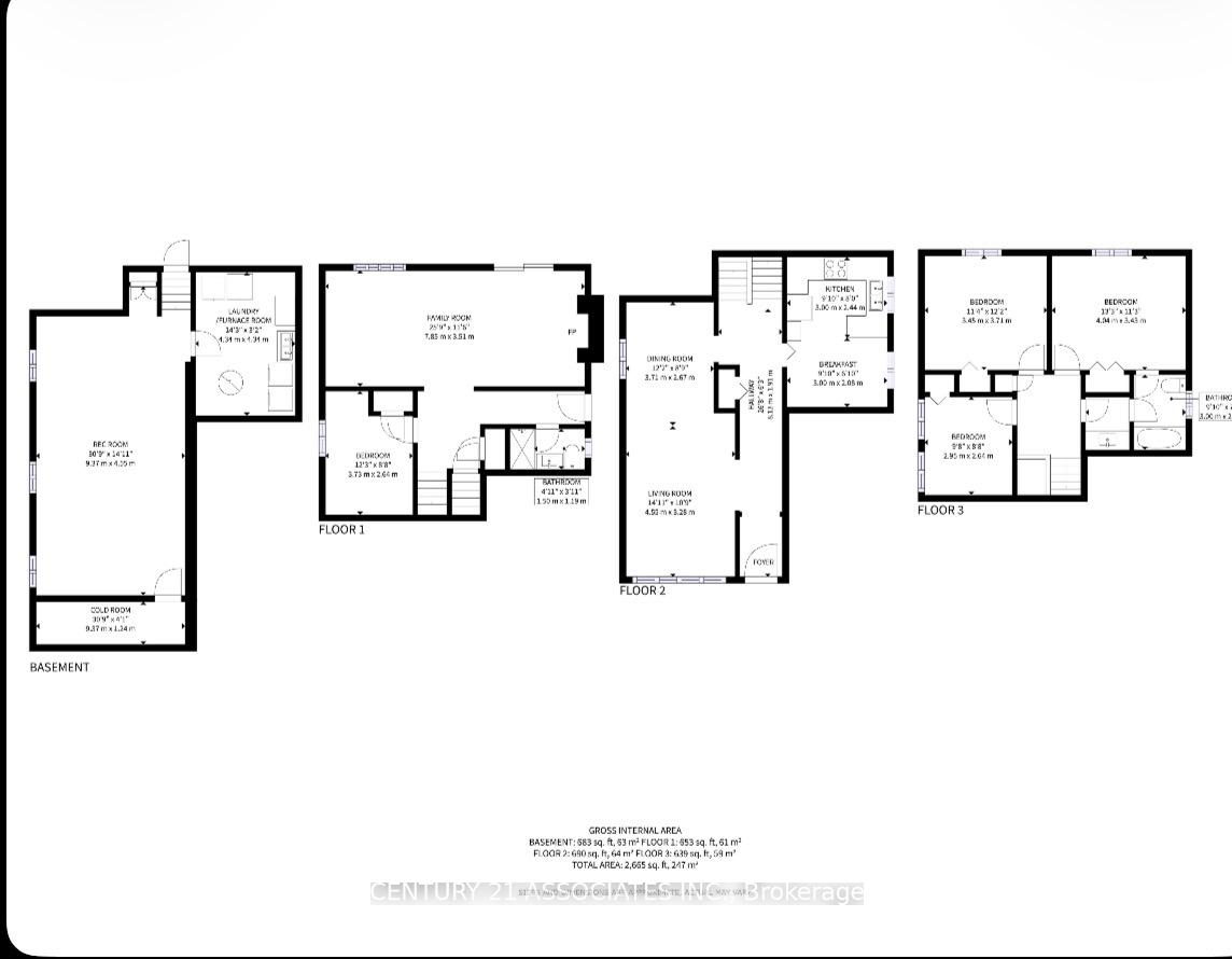
This property can easily be converted into a Mortgage Helper! Rare opportunity in sought after Lakeview! Nestled in one of Mississauga's most desirable communities, this spacious 4-bedroom back-split sits on an exceptional 36.5 x 297.5 ft lot - offering endless potential for families, investors, or builders alike. Features include a 26-ft family room with cozy wood-burning fireplace, updated 3-pc bath, finished basement with cold cellar, and extensive crawlspace storage. Easily converted into two income-generating suites (mortgage helper). Upgrades include windows, exterior doors, garage door, and roof. Elegant plaster crown mouldings and classic wood bannisters add timeless charm.Enjoy a private greenhouse, oversized garage with loft storage, and interlocking stone driveway with ample parking. The fully fenced yard provides incredible outdoor space - ideal for gardening, a pool, home additions, or future redevelopment. Prime Location: Steps to 300,000+ sq. ft. of retail and office space featuring top-tier dining, shopping, and services. Surrounded by 18 acres of parkland including a 13-acre waterfront park with European-style promenades. Minutes to Marina, park, lakefront trails, golf, highways, public transit, and top schools. Whether you're searching for a family-friendly home, a lucrative investment, or the perfect lot for your dream build, this Lakeview gem delivers unmatched potential and lifestyle. Floor plans included.

Location Description

Cawthra/Atwater/Lakeshore

Property Details
  • Community: Lakeview
  • Property Type: Partial/Residential Freehold
  • Bedrooms: 4
  • Bath: 2
  • Garages: Built-In
  • Annual Property Taxes : $ 7795
Building Features
  • Foundation Type: Unknown
  • Counstruction Material : Brick
  • Total Parking Space : 5
  • Parking Type : Built-In
Features
  • Heating : Forced AirGas
  • Sewer : Sewer ,

Listing Contracted With: CENTURY 21 ASSOCIATES INC.